practice
projects
lab
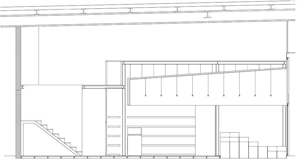
MAX stores
North Portugal, 1997-2007
project MAX stores | built | 1997-2007
location north portugal
client private
architecture helder casal ribeiro