EMÍDIO NAVARRO SECONDARY SCHOOL

viseu, 2008-2010

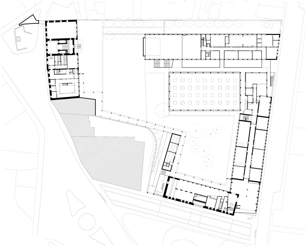
project emídio navarro public secondary school | built | 2008-2010

location viseu, portugal

client parque escolar, e.p.e. [programa de modernização dos edifícios escolares]

architecture francisco barata fernandes and helder casal ribeiro [FBF & MPS Arquitetos, Lda.]