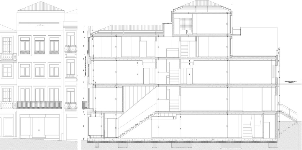
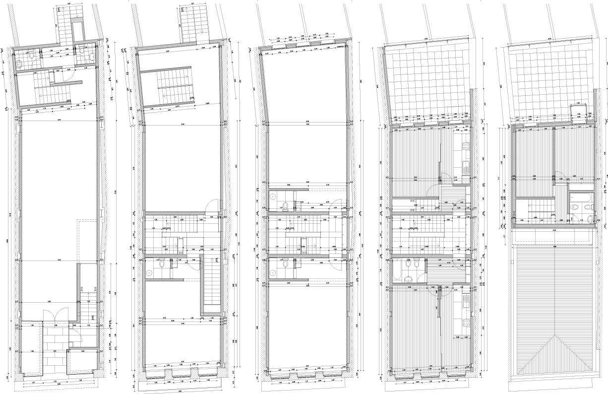
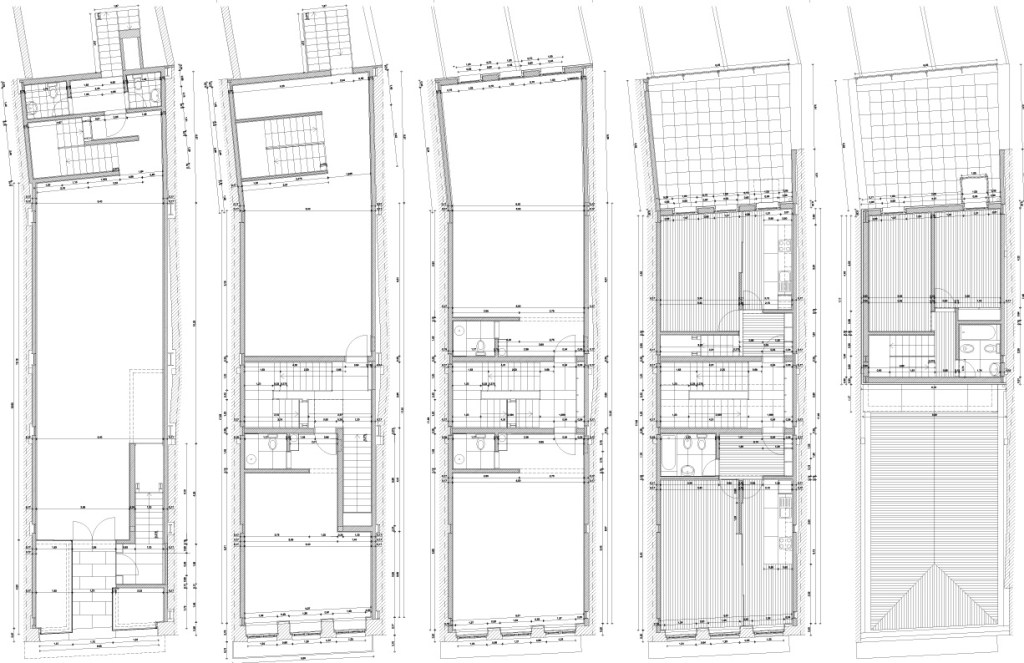
SANTA CATARINA REFURBISHMENT

Porto, 2007-2009

project santa catarina refurbishment | built | 2007-2009

location porto, portugal

client private

architecture helder casal ribeiro and ana sousa da costa [ASC & HCR Arquitetos, Lda.]