practice
projects
lab
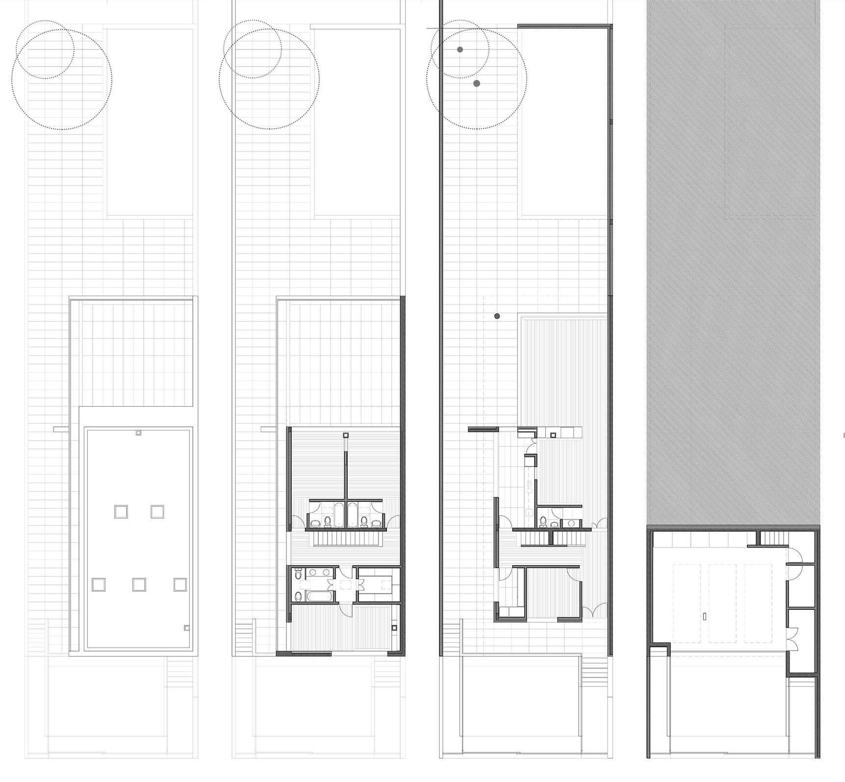
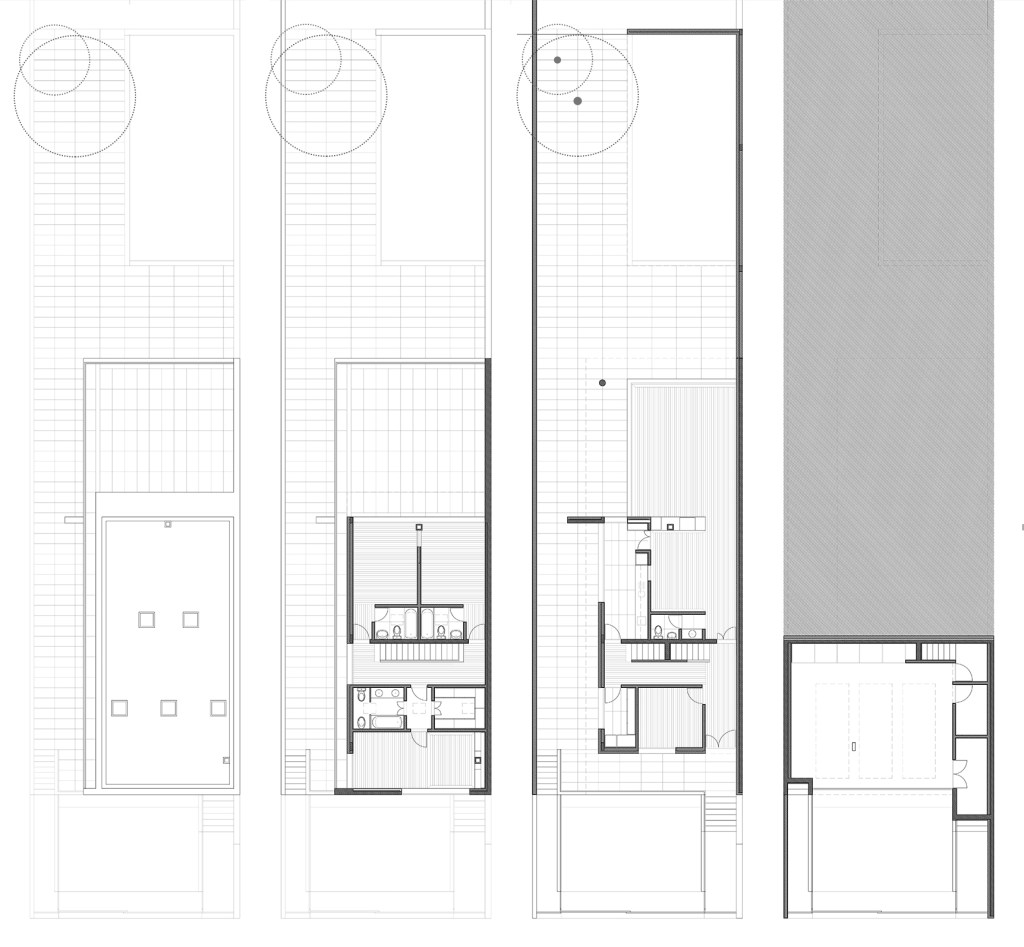
PAULO PINTO TWIN SINGLE FAMILY HOUSE
madalena, 2007
project paulo pinto twin single family house | unbuilt | 2000-2007
location madalena, portugal
client private
architecture helder casal ribeiro