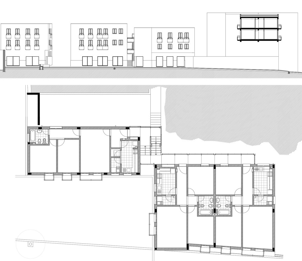
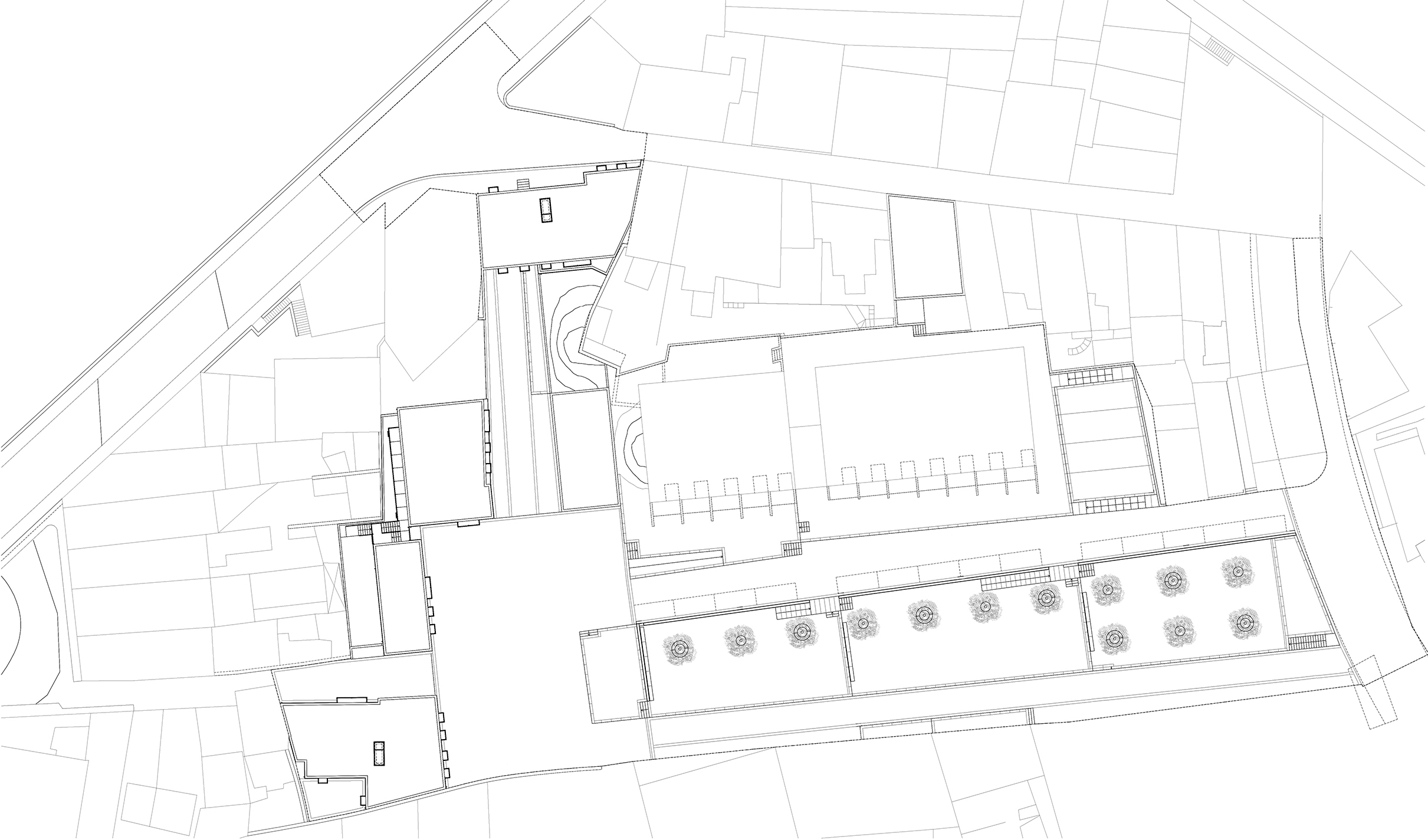
FONTAINHAS SOCIAL HOUSING – PER

porto, 1997-2008

project fontainhas social housing – PER | built | 1997-2008

location porto, portugal

client câmara municipal do porto

architecture helder casal ribeiro and ana sousa da costa [ASC & HCR Arquitetos, Lda.]

photography helder da rocha | daniel monteiro | sérgio silva

awards national award IHRU 2008