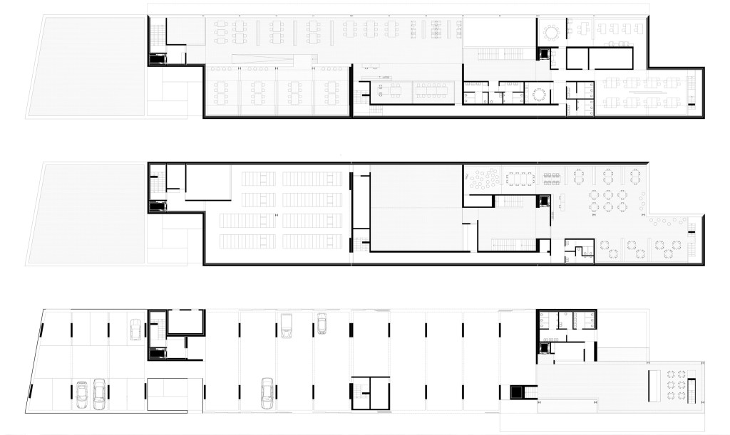
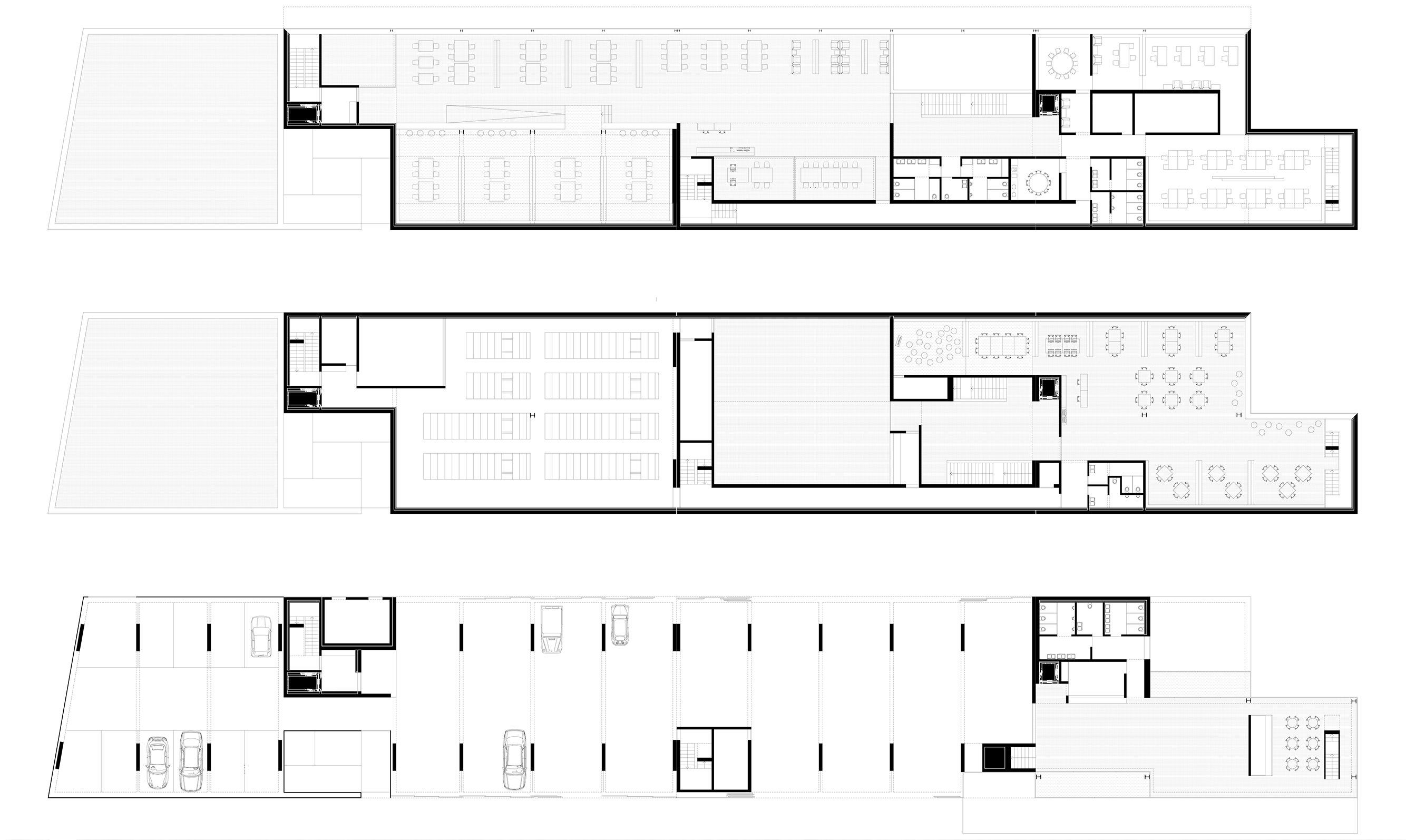
SETÚBAL MUNICIPAL LIBRARY
portugal, 2013





project biblioteca municipal de setúbal | international competition | 2013
location setúbal, portugal
architecture helder casal ribeiro (coordinator) | nuno m. sousa, hugo ferreira, hugo cruz, david monteiro | marta ramos (graphic designer)
engineering filipe casal ribeiro [FCR_Eng. Unipessoal] | raul bessa [GET] | joaquim silva [RG4E] | bruno moreira