MONDEGO SINGLE FAMILY HOUSE REFURBISHMENT AND EXPANSION
porto, 2020-2024













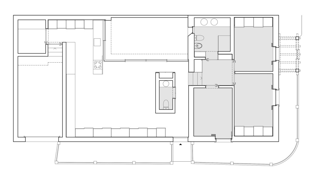
project mondego single family house refurbishment and expansion | built | 2020-2024
location porto, portugal
client private
architecture helder casal ribeiro and sílvia ramos with diogo nogueira
photography francisco ascensão