practice
projects
lab
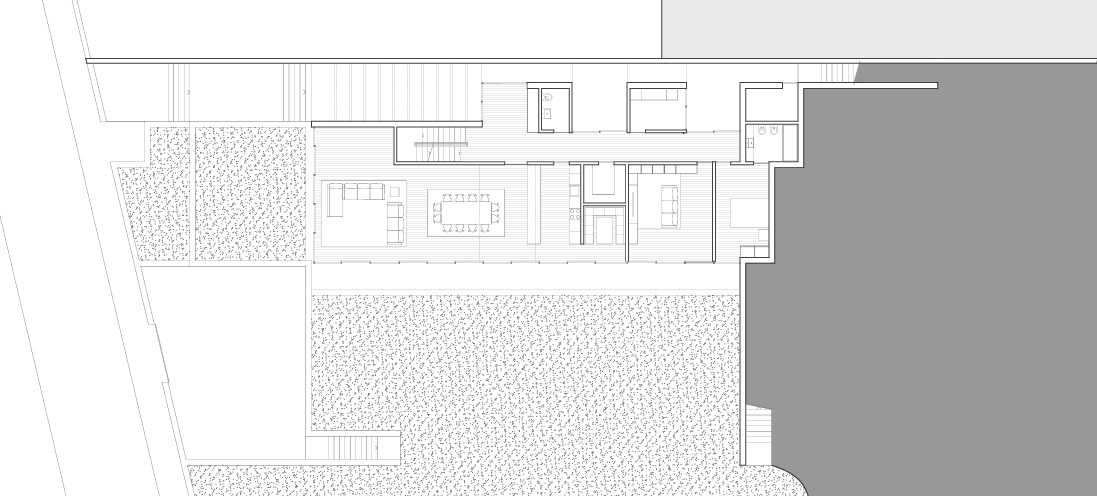
AREIAS SINGLE FAMILY HOUSE
gondomar, 2022
project areias single family house | unbuilt | 2022
location gondomar, portugal
client private
architecture helder casal ribeiro and sílvia ramos with diogo nogueira