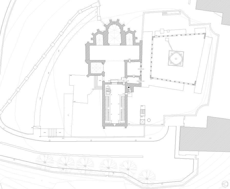
SANTA CLARA CHURCH REHABILITATION
vila do conde, 2024-…







project santa clara church rehabilitation | in development | 2024-…
location vila do conde, portugal
client câmara municipal de vila do conde
architecture helder casal ribeiro and sílvia ramos
engineering aníbal costa [Gepectrofa] | joaquim silva [RG4E]
restoration teresa silveira | clarisse silva
landscape arch. antónio moreira
images direção-geral do património cultural – património cultural I sílvia ramos